Make this brand new stunning 2 storey town house yours. Kick back and indulge in all it has to offer! Designed by award winning architect Robert Simeoni & Associates.
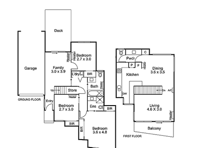
A Williamstown gem! 3 bedrooms, 2 bathrooms + powder room, a spacious garage with OSP for 2 cars, double-glazed windows throughout and the best views in town.
The upstairs area houses Living and Meals with a luxuriously appointed kitchen including two-pack kitchen cupboards, soft-close drawers, Caesar Stone bench-tops and stainless Miele appliances.
The inclusions and quality are incredible! Bamboo floor boards throughout, video intercom system & alarm, quality blinds (one-way views), Colourbond roofing & spouting, hydronic heating throughout, pure wool carpet in all bedrooms, solar powered hot water system with gas booster, looped hot water system throughout providing instant hot water from taps, water storage tank, frameless shower screens, floor to ceiling tiles in bathrooms & remote garage door
- Air Conditioning
- Reverse Cycle Air Conditioning
- Split-System Air Conditioning
- Balcony
- Courtyard
- Fully Fenced
- Outdoor Entertainment Area
- Remote Garage
- Secure Parking
- Alarm System
- Broadband Internet Available
- Built-in Wardrobes
- Dishwasher
- Floorboards
- Intercom
- Pay TV Access
- Grey Water System
























